Fitout of a 36,000 sqft healthcare clinic adjacent to Battersea Power Station

Healthcare Clinic Prince of Wales Drive

Location: Battersea, London
Size: 36,027 sqft

MWA were appointed to prepare a planning application to develop a second healthcare facility for London International Patient Services (LIPS), following the development of the flagship clinic in the historic Battersea Power Station.

The aspiration is to establish a unique healthcare facility that combines medical excellence, patient-centred care and a collegiate environment for doctors to collaborate together.

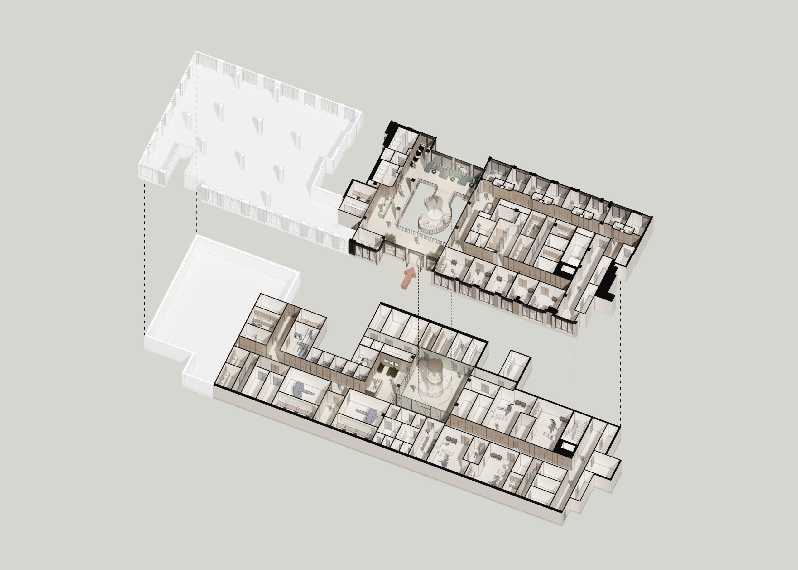
Phase II involves the fitout of an existing ground and lower ground floor office unit into a new day clinic on Prince of Wales Drive. The proposal is for a multi-specialty medical group to create a new high-quality facility. The scheme will include imaging and operating facilities for minor and intermediate procedures with dedicated recovery areas.

The design motifs, inspired by the healthcare’s brand identity, runs as a common thread through both site locations, ensuring a cohesive and recognisable experience for patients.

Read more about the Battersea Power Station Healthcare Clinic
Read more about our healthcare experience